آخرین بروزرسانی :3/11/1401
Bush/ مشخصات بوش ها
Key & Bore/شفت و خار
فرم درخواست پولی
مشخصات محصول
SPA 100/6
افزودن به سبد خرید
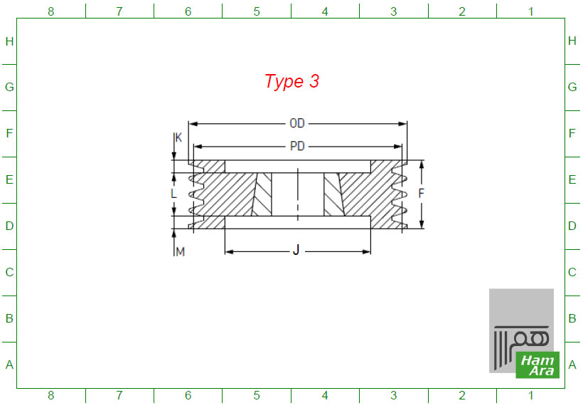
N (GROOVES)
BUSH
MAX BORE
PULLEY TYPE
F
J
K
L
M
N
PD
OD
Weight (kg)
6
1610
40
3
95
71
28.5
38
28.5
-
100
106
2.9
بازگشت به صفحه اصلی
ذخیره PDF
×
خرید کالا
Some text in the Modal Body
Some other text...
خبرنامه